网站升级中

新闻内容
您当前的位置 :首页 > 新闻资讯 > 技术知识 >

电机welcome

联系我们Contact Us

上海奕步电机有限公司-WEG授权代理商

联 系 人 : 周经理

联系电话:191-2198-6111

Q        Q:  857-768-487

电       话:021-6992-5088

传       真:021-6992-5099

网       址:http://www.qiaoqifushi.cn/

邮       箱:19121986111@163.com

地       址:上海市嘉定区宝安公路2999弄

PS1系列外形与安装(下载并安装)

发布时间:2021-03-06 16:00
3797次

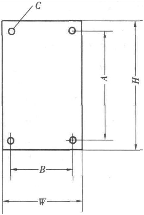
PS1系列的外观和安装尺寸如图2-12-1所示,如表2-12-1所示。

u0udvzn5mq0.jpg

ljokemsi4hx.jpg

图2-12-1 PS1系列软起动器的外观和安装尺寸

C型安装孔直径

(1)外形和安装尺寸

表2-12-1 PS1系列软起动器安装尺寸表

HP(马力)尺寸(英寸)打开面板NEMA1NEMA4/12/3R(1)(3)240V380V480V575VHWDABCHWDABCHWDABC1?253?403?505?601513.5913.512.90.3二手NEMA121615.99.812.2150.330?

40

50?

60

60?

75

75?

100

17191115.517.50.431.724.31230.3180.42424.2122222.20.450?

60

75?

100

100?

125

125?

150

20191118.517.50.431.724.31230.3180.43028.2142226.20.375?

100

125?

150

150?

200

200?

250

271911.525.517.50.437.8241337.3180.436 * 30 * 13 * 34.5 * 28.5 * 0.5125?

200

200?

300

250?

400

300?

500

29.5191225.517.50.443.73013.143.2240.448 * 36 * 17 * 46.5 * 33 * 0.5

连续表

HP(马力)尺寸(英寸)打开面板NElIA1NEMA4/12/3R(1)(3)240V380V480V575VHWDABCHWDABCHWDABC250?

300

350?

450

500?

600

600?

700

453314.443.231.20.449.73615.249.2300.461.7 * 36 * 17.5 * 61.2 * 30 * 0.4350?

500

500?

700

700?

1000

800?

1125

请与制造商联系

注意NEMA4/12/3R在设备中配备了一个旁路接触器,该设备与底部4列中带有*标记的设备相对应。请与制造商联系,以选择带有密封垫和过滤器的通风NEMA12控制柜外壳。

(2)安装

1.网站要求

为了获得预定的设计性能和正常的使用寿命,必须正确安装PS1系列。 PS1应该安装在以下环境中。

(1)工作环境温度:

①封装装置:0?40℃;

②底盘式装置:0?50℃。

(2)防雨防潮。

(3)湿度为:5%?95%,并且没有起雾。

(4)远离金属颗粒,导电性灰尘和腐蚀性气体。

(5)开板控制器应安装在合适的包装盒中,包装尺寸和型号应适合散发晶闸管产生的热量,用户可与制造商联系。

2.零件检查

在安装PS1设备之前,请确保在运输过程中未损坏所有部件。请在测试机器前及时报告损坏情况。在运输和安装过程中,请检查机械零件是否松动或脱落。电线松动会增加电阻并导致设备故障。在开始安装之前,请确保电动机和PS1具有相同的额定电压和功率,并且电动机的总负载电流(FLA)与PS1铭牌上的额定值匹配。检查PS1单元过载继电器铭牌上的过载电流设置值,并确保电动机的总负载电流(FLA)在调整范围内。

3.注意事项

在控制设备的外部电源时,请勿检查设备。否则,可能会导致致命的电击。在检查控制器之前,必须断开主电源和控制电源,以免触电。必须在终端控制箱和控制面板上贴上警告标志,以符合当地的电气安全标准。

4.安装和清洁

在控制箱中钻孔时,它会覆盖电子部件,以防止金属碎片积聚在难以清洁的部件上或可能导致电子设备短路。完成工作后,请仔细清洁与PS1单元无关的部位和物体,并确保PS1系列控制器周围有足够的空间用于冷却,布线和维护。 ?????????????????????????????????????????????????????????????????????????????????????????????????????????????????????????????????散热片应垂直且平行于安装表面安装,以利于空气流通。

在肮脏或受污染的环境中,应定期清洁机器以使其冷却。请勿使用化学药品对其进行清洁。使用5.6-7kg/cm2的干净,干燥的压缩空气吹去表面的灰尘。也可以在除尘之前使用它,并且高质量的刷子可以去除灰尘。

警告:清洁之前,请断开所有电源。

本文关键词

本文网址:http://www.qiaoqifushi.cn/news/1267.html

相关产品

相关新闻

公司地址 : 上海市嘉定区宝安公路2999弄

公司邮箱 : 19121986111@163.com

公司电话 :?021-6992-5088